Az oldal sütiket használ

Az oldal sütiket és egyéb nyomkövető technológiákat alkalmaz, hogy javítsa a böngészési élményét, azzal hogy személyre szabott tartalmakat és célzott hirdetéseket jelenít meg, és elemzi a weboldalunk forgalmát, hogy megtudjuk honnan érkeztek a látogatóink. Bővebben

 

Priemyselný a skladový objekt

Utca: Pribetská
Városrész: Bohatá
Település: Hurbanovo
Kerület: Komárno
Megye: Nitriansky kraj
Kategória: Objektum
Típus: Eladás
Objektumtípus: Raktárak és csarnokok
Egyéb:

Ingatlan leírása

Realitná kancelária Perfect Real, s.r.o. ponúka NA PREDAJ priemyselný objekt, ktorý sa nachádza v Hurbanove, mestskej časti Bohatá. Objekt je v zastavanom území mesta Hurbanovo a je vzdialený cca 900m od plánovaného napojenia na obchvat mesta Hurbanovo, cesty č. 64.

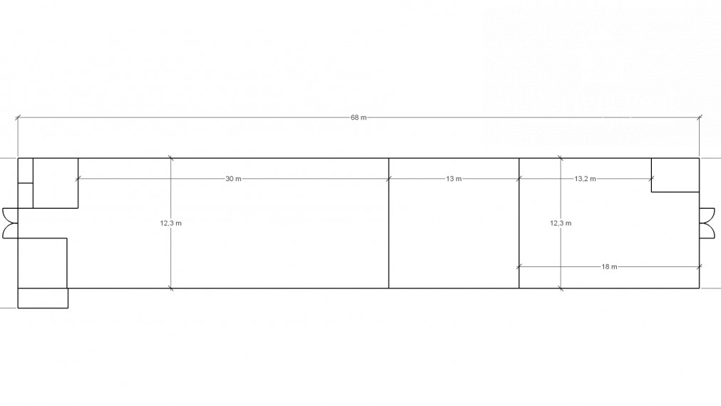
Budova má celkovú rozlohu pôdorysu 879m2, okolité pozemky majú rozlohu cca 19 árov, celková rozloha je cca 28 árov. Budova má vytvorené dve kancelárie a dve sociálne zariadenia. Je rozdelená na 3 oddelené časti, ktoré je však možné aj spojiť odstránením priečok, nakoľko netvoria nosné časti budovy a boli dodatočné vytvorené majiteľmi objektu. Strop je z protipožiarneho sadrokartónu a má výšku 4m. Vstupy na oboch koncoch objektu majú rozmer 3x3,3m.

Vykurovanie objektu je teplovodné cez drevosplyňujúci kotol. Na hranici obce sa nachádza STL plynovod, ktorý je možné predĺžiť pre prípadné vykurovanie objektu a ďalšej technológie. Elektrická prípojka je 3x125A s možnosťou zvýšenia kapacity na 3x 250A (bola znížená pre nevyužívanie rezervovanej kapacity).

V prípade záujmu nás neváhajte kontaktovať na 0917 359 551 alebo mailom vojtech.cervenak@perfect-real.sk

Tulajdonságok

Állapot:
aktív
Tulajdonjog:
személyes
Állapot:
részben átalakított
Teljes terület:
2800 m2
Hasznos terület:
879 m2
Állapot:
aktív
Tulajdonjog:
személyes
Állapot:
részben átalakított
Teljes terület:
2800 m2
Hasznos terület:
879 m2

Informatív hitel kalkulátor

Mutasd a térképen

Bróker

Vojtech Červenák

Vojtech Červenák

realitný špecialista

  • Slovensky
  • Magyar

Szívesen adunk tanácsot