Az oldal sütiket használ

Az oldal sütiket és egyéb nyomkövető technológiákat alkalmaz, hogy javítsa a böngészési élményét, azzal hogy személyre szabott tartalmakat és célzott hirdetéseket jelenít meg, és elemzi a weboldalunk forgalmát, hogy megtudjuk honnan érkeztek a látogatóink. Bővebben

 

Na predaj 4. izb. bungalov v štandarde na pozemku 649m2 v Báči. PREDANÝ!!!

Település: Báč
Kerület: Dunajská Streda
Megye: Trnavský kraj
Olyasmi: Házak
Típus: Eladás
Ház típusa: Családi ház
Ár az ügynökségnél

Ingatlan leírása

Túžite po bývaní v príjemnom zelenom prostredí v blízkosti Dunaja, kde je čistý vzduch a množstvo možností s aktívnym športovým vyžitím ???

Ponúkame Vám na predaj 4 izbový bungalov v Báči v novovybudovanej obytnej zóne Godmáň III.

 Godmáň III je trojetapový projekt , momentalne je vo fáze výstavby prvej etapy  . 

ROZMERY:

pozemok 649m2

zastvaná plocha  domu 160m2

úžitková plocha domu 130m2

Novostavba je navrhnutá pre rodiny s dynamickym životným štýlom. Disponuje dostatočným priestorom , ktorý je naozaj  veľmi prakticky rozložený.  Na príjemné posedenie v exteriéri poslúži krásna prestrešená terasa. Hlavný vstup do areálu je príjemne upravený parkovou výsadbou,

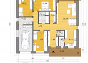
DISPOZÍCIA:

  • kuchyňa spoločná s obývacou izbou disponujúca krbom a jedálenským kútom a neodmysliteľne aj  s prístupom na terasu
  • dve detské izby 
  • spálňa s prístupom na terasu
  • samostatné WC
  • kúpelňa spoločná s WC
  • šatník
  • technická miestnosť priamo prístupná aj z exteriéru
  • garáž

 TECHNICKĚ RIEŠENIE STAVBY:

Steny novostavby sú navrhnuté z pálenej  brúsenej tehly Wienerberger 300mm, zateplenie je 160mm polystyrén . 

Krov je väzníkový s dostatkom úložného priestoru nielen pre sezónne veci. Vstup do tohoto priestoru je situovaný v garáži, kde sú  do stropu zabudované vstupné sklápacie schody.

Vykurovanie bungalovu je riešené teplovodným podlahovým vykurovaním. Zdrojom vykurovania je tepelné čerpadlo so zásobníkom vody 190L, ktorým je možné počas letných mesiacov dom aj chladiť.

Domy sú postavené z kvalitných materiálov , energeticky sa radia do ultranízko energetickej triedy A0.

Na pozemok a do domu sú dotiahnuté  IS / voda, elektrika, kanalizácia/

Ponúkaná nehnuteľnosť je dokončená do štádia  vysokého štandardu vo veľmi vkusnom prevedení zemitých odtieňov.

Štádium štandard zahŕňa:

  • hnedo/biele plastové okná, vchodové dvere s tepeloizolačným zasklením , trojsklo- 6 komorové
  • elektrické medenné rozvody, umiestnenie krabíc, zásuviek a vypínačov
  • realizácia vnutorného sadrokartónového stropu+ parozábrana+izolácia 380mm minerálna vlna
  • montáž kúrenia- tepelné čerpadlo so 190L zásobníkom
  • vnútorné omietky , na strope vyspravené sadrokartóny + 2x biely náter
  • podlahový polystyrén+ betónový poter
  • podkrovné vyklápacie schody
  • dlažby+ obklady
  • plávajúca podlaha izby
  • sanita wc+ kúpelňa
  • interiérové dvere+ zárubne+ kľúčky
  • realizácia bleskozvodu
  • dokončená vonkajšia fasáda 
  • zámková dlažba na 1 auto pred garážou
  • chodníky, zadná terasa,  predné murované oplotenie, zadné  a bočné oplotenie plus terénne úpravy

Bonusové štádium štandardu zahŕňa :

  •  kompletne vybavená kuchynská linka v bielom lesku so zabudovanými spotrebičmi značky ELEKTROLUX / umývačka, mikrovlnná rúra, teplovzdušná rúra, indukčná varná doska/
  • vonkajšie elektrické  hlinníkové žalúzie 
  • dve pozinkované elektrobrány s motorom + vstupná bránka

Cenu vieme dohodnúť a odkomunikovať po obhliadke ,pri osobnom stretnutí, tešíme sa na Vás milí klienti.

 

LOKALITA: 

Obec Báč sa nachádza na Žitnom ostrove, v okrese Dunajská Streda, ktorá je vzdialená 17 km , hlavné mesto Bratislava je po D4 vzdialené 21km.

Táto obec má viacero kultúrnych pamiatok, ako napríklad farský kostol sv. Antona zo 17.storočia a kaštiel  Welten z prvej polovice 19. storočia, ku ktrému prislúcha aj  rozľahlé golfové ihrisko - golfový club Welten.

Občianská vybavenosť v obci je základná. 

V blízkosti obce sa nachádzajú cyklotrasy, pešie  turistické chodníky , kde môžete objavovať krásy okolitej prírody.

Neprehliadnite našu 3D virtuálnu prehliadku , nájdete ju v inzeráte ,hneď pod popisom nehnuteľnosti.

Ak hľadáte  moderné bývanie vo výnimočnom pokojnom prostredí s príležitosťou na športové aktivity a relax, kontaktujte nás : 0948 226 681, email strniskova.ec@gmail.com

 

Tulajdonságok

Állapot:
aktív
Tulajdonjog:
egyéb
Földterület:
649 m2
Talaj típusa:
repülőgép
Terület:
Intravilan
Hasznos terület:
130 m2
Beépített terület:
160 m2
Állapot:
új épület
Szobák száma:
4
Energiatanúsítvány:
A
Az épület energiahatékonysága:
Alacsony energiafogyasztás
Berendezés típusa:
részben felszerelt
Terasz:
igen
Garázs:
igen
Kamra:
igen
Építés éve:
2023
Teljes terület:
649 m2
Terasz területe:
24.57 m2
Teraszok száma:
1
Garázsok száma:
1
Garázs terület:
17.53 m2
Segédprogramok:
ano
Víz:
igen
Elektromosság:
igen
Csatornázás:
igen
Víz - A telken:
igen
A telken - kút:
igen
Elektromosság - A telken:
igen
A telken - csatornázás:
igen
Fűtés - padló:
igen
Száloptikai hálózat:
igen
Állapot:
aktív
Tulajdonjog:
egyéb
Földterület:
649 m2
Talaj típusa:
repülőgép
Terület:
Intravilan
Hasznos terület:
130 m2
Beépített terület:
160 m2
Állapot:
új épület
Szobák száma:
4
Energiatanúsítvány:
A
Az épület energiahatékonysága:
Alacsony energiafogyasztás
Berendezés típusa:
részben felszerelt
Terasz:
igen
Garázs:
igen
Kamra:
igen
Építés éve:
2023
Teljes terület:
649 m2
Terasz területe:
24.57 m2
Teraszok száma:
1
Garázsok száma:
1
Garázs terület:
17.53 m2
Segédprogramok:
ano
Víz:
igen
Elektromosság:
igen
Csatornázás:
igen
Víz - A telken:
igen
A telken - kút:
igen
Elektromosság - A telken:
igen
A telken - csatornázás:
igen
Fűtés - padló:
igen
Száloptikai hálózat:
igen

Virtuális túra

 

Mutasd a térképen

Bróker

Žaneta Strnisková

Žaneta Strnisková

Makler senior, Bratislava, Pezinok, Slovensko

  • Slovensky
  • Česky
  • English

Szívesen adunk tanácsot