
Garsónka v Dúbravke s balkónom VOĽNÉ!!!!
- Bratislava-Dúbravka,
- 26 m2
Belső azonosító: | MC-64 |
---|---|
Utca: | Nejedlého |
Település: | Bratislava-Dúbravka |
Kerület: | Bratislava IV |
Megye: | Bratislavský kraj |
Olyasmi: | Lakások |
Típus: | Bérlés |
Apartman típus: | 3 szobás lakás |
Ponúkame na prenájom krásny priestranný 3 izbový byt v Dúbravke na Nejedlého ulici.
Byt sa nachádza v peknom kľudnom prostredí Dúbravky so súkromným detským ihriskom.
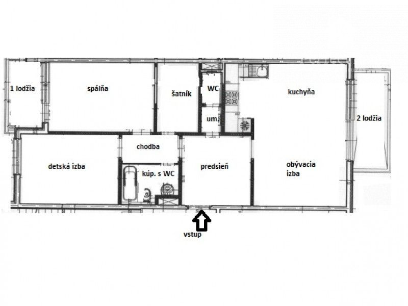
Rozloha nehnuteľnosti je 77m2 + s 2 loggiami 10m2.
Dispozícia:
Pozostáva z priestrannej vstupnej haly, obývacej izby s prepojenou kuchyňou, 2 samostatných izieb, kúpeľne s wc a ďalšieho samostatného wc, vstupným šatníkom a 2 loggií, na ktoré je vstup z kuchyne a spálne.
Orientácia a prostredie:
Byt je situovaný na 3. poschodí zo 6 s výťahom. Na každom poschodí sú 2 byty. Orientácia bytu je na sever a juh.
Vybavenie:
Nehnuteľnosť sa prenajíma kompletne zariadená nábytkom a spotrebičmi.
• Kuchynská linka je vybavená umývačkou riadu, chladničkou s mrazničkou automatickou práčkou, mikrovlnnou rúrou a elektrickou rúrou,
• v obývačke je rozkladacia pohovka, nábytok, TV a reprosústava,
• v kuchyni je rozťahovací jedálenský stôl s pohodlným stolovaním pre 4 osoby
• spálňa je vybavená manželskou posteľou, komodami vyhotovenými na mieru a vstavanou skriňou.
• detská izba má jednu posteľ s možnosťou zamenenia za poschodovú a detským nábytkom
• vstupná hala je taktiež vybavená vstavanou skriňou
• v kúpeľni je umývadlo, skrinkami a vaňou
Parkovanie:
Je možné verejné v okolí bytového domu alebo možnosť prenájmu súkromného podzemného parkovacieho státia za poplatok 60,-Eur.
Cena nájmu predstavuje čiastku 750,-Eur mesačne pre max. 3osoby bez energií. Cena energií je 250,-Eur /správca, elektrina, internet/, plus parkovanie 60,-Eur.
Byt je k voľný od 1.11.2025.
Fajčenie a domáce zvieratá nie sú povolené.
V okolí sa nachádza výborná občianska vybavenosť. Základná škola, gymnázium, potraviny, detské ihrisko, Banka, lekáreň, reštaurácie, nákupné centrum Bory Mall dostupné autom do 5minút, pohodlný rýchly výjazd na diaľnicu D2 smer Brno, do mesta autom dostupnosť do 20minút, zastávka MHD-električky, autobusy. Pekné prechádzky do prírody a okolia.
V prípade, že Vás táto ponuka zaujala, neváhajte ma kontaktovať na tel. číslo +421 903 203 289 alebo emailom: monika.canova@perfect-real.sk
realitný špecialista